農民で音楽家で大工であった祖父が自身で建てた築60余年の古民家をできる限り自分でリフォームして、ギャラリーや音楽会、ワークショップなど、幅広く利用できるスペースとして、新しく始めました。

まるまるレンタルできるお寺レンタルスペース

レンタルお寺

古民家 レンタルスペース
古民家レンタル 古民家再生 gomoku
ゴモク ゴモク
利用参考料金
1時間 ¥1,000〜

※利用料金は予告なく変更する場合があります。
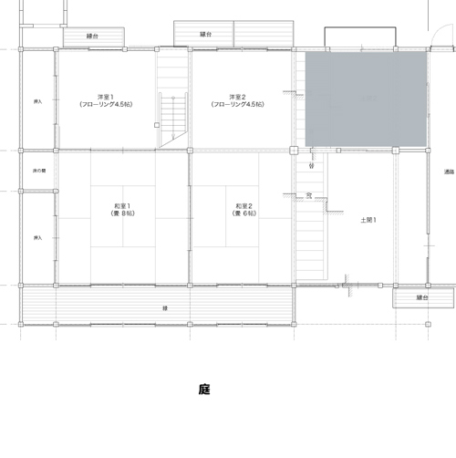
※貸し出しは上記間取り図の内、和室1,2,洋室、土間となっております。
その他の部屋は備品の収納の為に、立ち入り禁止になっております。
※その他お気軽にご相談ください。

設 備

電源 各箇所
水道 2カ所
展示パネル 各箇所 、スポットライト(展示用)
給湯ポット、長机 、座卓 、椅子 、扇風機、薪ストーブなど。
※無料のものと有料のものがあります。事前にお申し込みください。

利用規定

ゴモクは、写真、絵画、工芸品などの展示や教室利用、写真撮影会などに幅広くご利用いただけます。
ただし、お申し込み時に申告していただく内容に無断変更、虚偽または意図的な隠蔽がある場合は
利用料金の受領後でも予約を取り消しさせていただく場合があります。
その他、当方で不適切と思われる場合は、お断りさせていただく場合がありますのでご了承ください。
・公序良俗に反するもの。
・近隣住人に迷惑をかける恐れがあるもの。

◇支払について
ご予約金をお支払いいただいた時点で、正式なお申し込みとなります。

◇キャンセル
お客様のご都合によりキャンセルされた場合、キャンセル料を請求する場合があります。
キャンセル料金
29日前〜15日前: 50%
14日前〜8日前: 100%
7日前〜当日: 100%

◇手数料
作品、商品の販売につきましては、ゴモクとして販売手数料等はいただきません。
売買に関しましては、全て主催者の責任において行ってください。

飲食を目的としたご利用は基本的にお断りさせていただいております。
おにぎり、パンなどの軽食は畳意外の場所では可能です。


飲食風景の撮影は事前に申告していただいた場合のみ許可させいただきます。
内容によってはお断りする場合があります。

館内は基本的には禁煙になっております。
喫煙は屋外の灰皿が設置された場所でのみ可能です。

会期中は必ず1名以上の常駐をお願いします。
展示物に関しては個々の主催者の責任において管理おねがいします。

展示物に対して保険が適応される事はありません。破損、汚損、盗難、紛失、その他の不慮の事故などについて、
当方として一切の責任は負いかねます。ご了承ください。

施設、設備を破損、汚損された場合、実費で弁償していただきます。

駐車場のご利用台数には限りがありますので、ご相談ください。

申し込み方法

受付はご利用の3ヶ月前からとなっております。
空いてる日程は下のカレンダーを参考にしてください。
ご利用は4時間〜とさせていただいております。
メールにて、連絡先、ご利用人数、目的、ご希望日時をお伝えください。可否をご連絡させていただきます。
お振込み先をお伝えしますので、1週間以内にお支払いください。
お支払い完了をもって、予約確定となります。
お支払いが確認できない場合は他のご予約を優先させていただきます。

◇住所
 堺市南区泉田中232
(ナビでお越しの場合は堺市南区泉田中228で設定してください)
◇アクセス
(電車の場合)南海高野線又は地下鉄御堂筋線の「中百舌鳥(なかもず)」より
泉北高速線で2駅の「泉ヶ丘駅」下車。
南海バス 鉢ケ峰行きに乗り、「泉田中」下車。徒歩5分です。
バスの本数が少ない為、ご注意ください。
帰りのタクシーも捕まらないので、事前に予約等されることをオススメします。

駐車場可能3〜5台
建物前の庭部分になるので台数が多いと庭での撮影などはできなくなります。